Проект дома 019-14

S = 144,28 м2
Площадь:
144,28 м2
  • Спальни:31
  • Санузел:21
Цена в комплектации"Стандарт"
от 5 135 791 руб.
Рассчитать стоимость самостоятельно
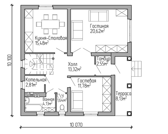
Площадь 1 этажа74,77 м2
Площадь мансардного этажа69,51 м2

Проект индивидуального дома общей площадью 144,28 м2

Небольшой, но красивый и уютный домик с мансардным этажом и террасой. Цветовая гамма светлая и спокойная, а обрамления окон поддерживают цвет кровли, придавая завершенный вид.

Фундамент — свайный с ростверком

Перекрытия:
Цоколя и первого этажа — по деревянным балкам

Материалы стен:
Наружные стены — газобетонные блоки 300 мм
Внутренние стены — газобетонные блоки 300 мм
Облицовка — утеплитель 50 мм, декоративная штукатурка, искусственный камень

Кровля — металлочерепица

Хочу изменить планировку
Это совсем просто! В нашей компании работает штат опытных архитекторов, которые на основании ваших идей
создадут индивидуальные планировки, внесут корректировки в фасад. Архитектор может встретиться с вами, как в
нашем офисе, так и в любом другом удобном для вас месте, в том числе на участке.