Проект дома 027-14

S = 98,39 м2
Площадь:
98,39 м2
  • Спальни:31
  • Санузел:11
Цена в комплектации"Стандарт"
от 3 502 290 руб.
Рассчитать стоимость самостоятельно
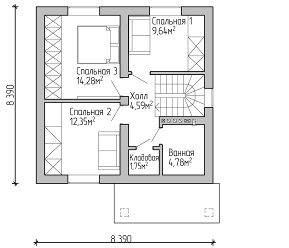
Площадь 1 этажа51 м2
Площадь мансардного этажа47,39 м2

Проект индивидуального дома общей площадью 98,39 м2

Компактный, красивый и очень удобный двухэтажный коттедж для постоянного проживания и дачного отдыха семьи. Внутренняя планировка соответствует всем современным требованиям к организации пространства.

Фундамент — свайный с ростверком

Перекрытия:
Цоколя и первого этажа — по деревянным балкам

Материалы стен:
Наружные стены — газобетонные блоки 400 мм
Внутренние стены — газобетонные блоки 400 мм
Облицовка — декоративная штукатурка, искусственный камень

Кровля — профнастил

Хочу изменить планировку
Это совсем просто! В нашей компании работает штат опытных архитекторов, которые на основании ваших идей
создадут индивидуальные планировки, внесут корректировки в фасад. Архитектор может встретиться с вами, как в
нашем офисе, так и в любом другом удобном для вас месте, в том числе на участке.