Проект дома 028-13

S = 270,63 м2
Площадь:
270,63 м2
  • Спальни:31
  • Санузел:41
Цена в комплектации"Стандарт"
от 9 633 345 руб.
Рассчитать стоимость самостоятельно
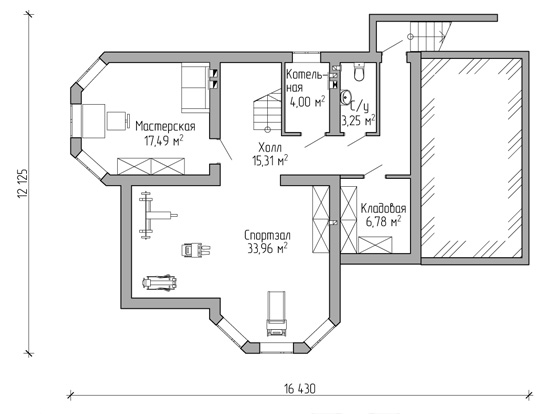
Площадь цокольного этажа80,79 м2
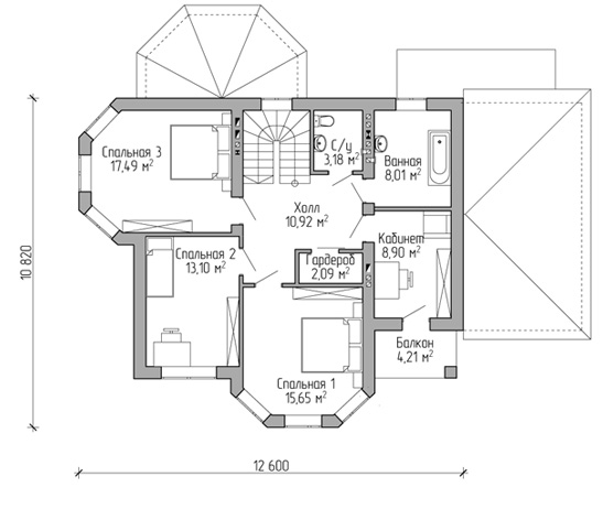
Площадь 1 этажа109,24 м2
Площадь 2 этажа80,6 м2

Проект индивидуального дома общей площадью 270,63 м2

Двухэтажный коттедж с гаражом на первом этаже. Гостиная, кухня и спальная расположены в эркерной части здания. Сочетание фасадной штукатурки, декоративного камня и контрастной гаммы цветов в отделке фасада, создают достойный облик особняка.

Фундамент — монолитная плита + блоки ФБС

Перекрытия:
Цокольного и первого этажей — пустотные железобетонные плиты
Второго этажа — по деревянным балкам

Материалы стен:
Наружные стены — газобетон 400 мм
Внутренние стены — цокольный кирпич 380 мм
Облицовка — штукатурка

Кровля — гибкая черепица

Хочу изменить планировку
Это совсем просто! В нашей компании работает штат опытных архитекторов, которые на основании ваших идей
создадут индивидуальные планировки, внесут корректировки в фасад. Архитектор может встретиться с вами, как в
нашем офисе, так и в любом другом удобном для вас месте, в том числе на участке.