Проект дома 032-12

S = 199,44 м2
Площадь:
199,44 м2
  • Спальни:41
  • Санузел:21
Цена в комплектации"Стандарт"
от 7 099 266 руб.
Рассчитать стоимость самостоятельно
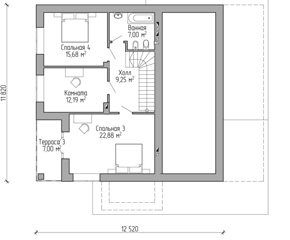
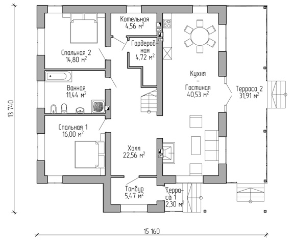
Площадь 1 этажа130,34 м2
Площадь 2 этажа69,1 м2

Проект индивидуального дома общей площадью 199,44 м2

Компактный загородный дом с мансардой. Планировочная схема обеспечила удачное изолированное существование блоков первого этажа, что максимально удобно для проживания. По левой стороне расположились две спальни и ванная комната, по правой - просторная кухня-гостиная. Мансардный этаж включает в себя спальные комнаты и помещение, которое может использоваться под кабинет.

Фундамент — свайный с ростверком

Перекрытия:
Цоколя и первого этажа — пустотные железобетонное плиты

Материалы стен:
Наружные стены — блоки КЕРАКАМ 510 мм
Внутренние стены — блоки КЕРАКАМ 380 мм
Облицовка — штукатурка

Кровля — гибкая черепица

Хочу изменить планировку
Это совсем просто! В нашей компании работает штат опытных архитекторов, которые на основании ваших идей
создадут индивидуальные планировки, внесут корректировки в фасад. Архитектор может встретиться с вами, как в
нашем офисе, так и в любом другом удобном для вас месте, в том числе на участке.