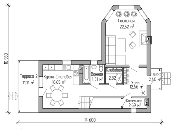
Проект индивидуального дома общей площадью 122,91 м2
Великолепный проект с хорошо продуманной и удобной планировкой по своему функциональному назначению. В таком доме будет легко и приятно жить семье из 3-4 человек.
Фундамент — свайный с ростверком
Перекрытия:
Цоколя и первого этажа — пустотные железобетнные плиты
Второго этажа — по деревянным балкам
Материалы стен:
Наружные стены — газобетонные блоки 400 мм
Внутренние стены — керамический полнотелый кирпич 250 мм
Облицовка — декоративная штукатурка, искусственный камень
Кровля — гибкая черепица