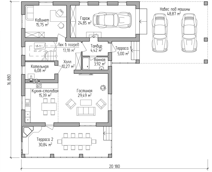
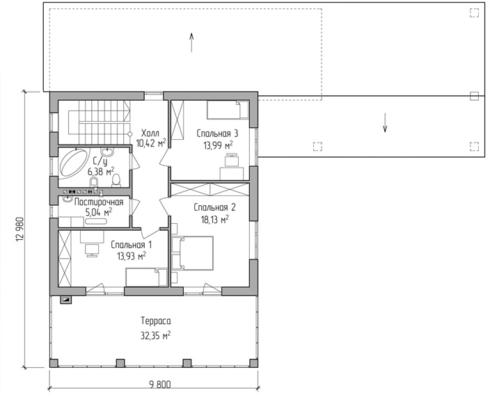
Проект индивидуального дома общей площадью 226,36 м2
Лаконичная отделка фасада придает дому респектабельный вид.
Фундамент — забивные сваи с ростверком
Перекрытия:
Цоколя и первого этажей — сборные железобетонные
Второго этажа — по деревянным балкам
Материалы стен:
Наружные стены — газобетонные блоки 400 мм
Внутренние стены — силикатный и керамический полнотелый кирпич, 380 мм
Облицовка — фасадная штукатурка
Кровля — металлочерепица