Проект дома 062-16

S = 153,48 м2
Площадь:
153,48 м2
  • Спальни:41
  • Санузел:21
Цена в комплектации"Стандарт"
от 5 463 274 руб.
Рассчитать стоимость самостоятельно
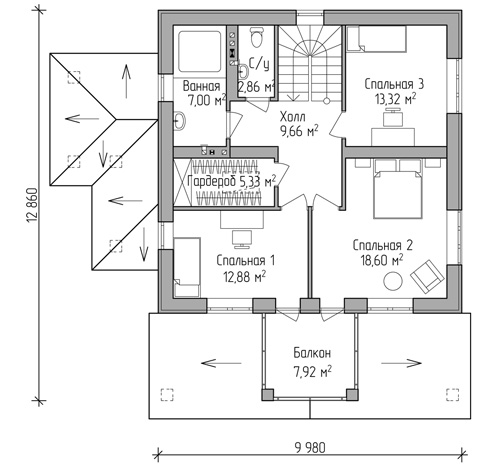
Площадь 1 этажа81,45 м2
Площадь 2 этажа72,03 м2

Проект индивидуального дома общей площадью 153,48 м2

Комфортный загородный дом, для проживания семьи из 3-6 человек.

Фундамент — монолитный ленточный

Перекрытия:
Цоколя и первого этажа — пустотные железобетонные плиты
Второго этажа — по деревянным балкам

Материалы стен:
Наружные стены — керамзитобетонные блоки 390 мм
Внутренние стены — керамический полнотелый кирпич 380 мм, силикатный кирпич 380 мм
Облицовка — утеплитель 100 мм, фасадная штукатурка, декоративный камень

Кровля — металлочерепица

Хочу изменить планировку
Это совсем просто! В нашей компании работает штат опытных архитекторов, которые на основании ваших идей
создадут индивидуальные планировки, внесут корректировки в фасад. Архитектор может встретиться с вами, как в
нашем офисе, так и в любом другом удобном для вас месте, в том числе на участке.