Проект дома 065-13

S = 211,7 м2
Площадь:
211,7 м2
  • Спальни:41
  • Санузел:21
Цена в комплектации"Стандарт"
от 7 535 673 руб.
Рассчитать стоимость самостоятельно
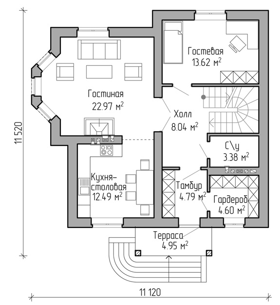
Площадь цокольного этажа72,05 м2
Площадь 1 этажа71,37 м2
Площадь 2 этажа68,28 м2

Проект индивидуального дома общей площадью 211,7 м2
Есть чердачное помещение, общей площадью 49,52 м2

Солидный, красивый дом, в отделке фасадов используется 2 цвета облицовочного кирпича, что придает ему оригинальности.

Фундамент — монолитная плита + монолитные стены

Перекрытия:
Цокольного и первого этажей — монолитное железобетонное перекрытие
Второго этажа — по деревянным балкам

Материалы стен:
Наружные стены — газобетонные блоки 300 мм
Внутренние стены — керамический полнотелый кирпич 380 мм
Облицовка — лицевой кирпич, искусственный камень

Кровля — гибкая черепица

Хочу изменить планировку
Это совсем просто! В нашей компании работает штат опытных архитекторов, которые на основании ваших идей
создадут индивидуальные планировки, внесут корректировки в фасад. Архитектор может встретиться с вами, как в
нашем офисе, так и в любом другом удобном для вас месте, в том числе на участке.