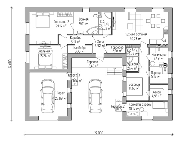
Проект индивидуального дома общей площадью 181,52 м2
Одноэтажный дом с погребом отличается своей П—образной формой в плане, что позволило четко разделить дом на такие функции как жилую, хозяйственную и банную. Основной концепцией дома являются простота, удобство и комфорт. Однако скромно оформленные фасады не лишены своей индивидуальности.
Фундамент — свайный с ростверком, в части погреба и бассейна монолитный ленточный
Перекрытия:
Цоколя — бетонная армированная стяжка
Первого этажа — по деревянным балкам
Материалы стен:
Наружные стены — газобетонные блоки 400 мм
Внутренние стены — газобетонные блоки 400 мм
Облицовка — лицевой кирпич
Кровля — металлочерепица