Проект дома 019-13

S = 178,92 м2
Площадь:
178,92 м2
  • Спальни:31
  • Санузел:21
Цена в комплектации"Стандарт"
от 6 368 836 руб.
Рассчитать стоимость самостоятельно
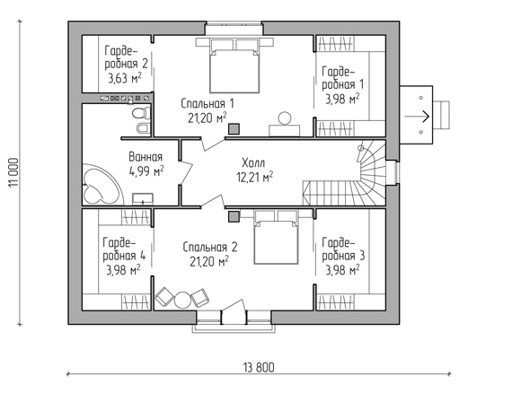
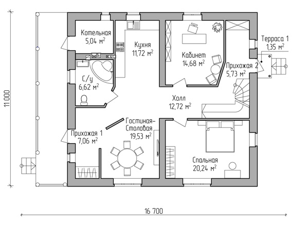
Площадь 1 этажа103,75 м2
Площадь мансардного этажа75,17 м2

Проект индивидуального дома общей площадью 178,92 м2

Проект коттеджа в нежных пастельных тонах с мансардным этажом. Наличие французкого балкона придает фасаду изящность и элегантность.

Фундамент — свайный с ростверком

Перекрытия:
Цоколя - пустотные железобетонные плиты
Первого этажа - по деревянным балкам

Материалы стен:
Наружные стены — пенобетонные блоки 400 мм
Внутренние стены — керамический полнотелый кирпич 380 мм
Облицовка — утеплитель 100 мм, декоративная штукатурка, искусственный камень

Кровля — металлочерепица

Хочу изменить планировку
Это совсем просто! В нашей компании работает штат опытных архитекторов, которые на основании ваших идей
создадут индивидуальные планировки, внесут корректировки в фасад. Архитектор может встретиться с вами, как в
нашем офисе, так и в любом другом удобном для вас месте, в том числе на участке.